00件
最近見た物件
00件
検討リスト
高田馬場にある保証人不要の賃貸|U-style(ユースタイル) > 物件一覧 > Villa SUBARU > 物件詳細
『学生、未成年、求職中、無職、フリーター、水商売、生活保護、保証人無し』
その他ご事情がある方など、まずはお気軽にご相談ください!
べテランスタッフが対応致しますのでご希望のお部屋が見つかります!
他社掲載物件・ネット非公開物件もご紹介可能です!
都内近郊から神奈川・埼玉・千葉のお部屋探しなら『U-style』にお任せ下さい!

| 所在地 | 東京都中野区松が丘1丁目 | ||
|---|---|---|---|
| 交通 | |||
| 間取り/詳細 |
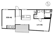
1LDK LDK 13.0帖/洋室 6.0帖 |
面積/バルコニー面積 | 46.02㎡/- |
| 賃料 | 13.2万円 | 管理費・共益費 | 3,000円 |
| 敷金/礼金/保証金 | 1ヶ月/1ヶ月/0ヶ月 | 償却/敷引 | -/- |
| 更新料 | 1ヶ月(新賃料) | 敷金積み増し | - |
| 権利金/雑費 | -/- | 駐車場/月額料金 | -/- |
| 保険加入/料金 | 有/22,000円 | 保険名/保険期間 | -/2年 |
| 保証人代行義務 | 必加入 | 保証会社 | エポスカード |
| 保証会社詳細 | /初回保証料:賃料等の80%(最低保証料15000円)月次保証料:賃料等の1.5% | 向き | 南西 |
| 築年月(築年数) | 2019年 9月 (築6年) | 契約期間 | 2年 |
| 種別/構造 | アパート/木造 | 部屋/所在階/階建 | -/ 2階/ 2階建 |
| 総戸数 | 2戸 | 現況/入居可能日 | 居住中/相談 |
| 特優賃 | - | 取引態様/賃貸区分 | 仲介/一般 |
| 物件番号 | 99557389 | 取引条件の有効期限 | 2025年12月16日 |
| 設備条件 |
|
||
| 備考 |
ーーーこちらの物件は【電話問い合わせ限定仲介手数料半額】対象物件ですーーー 初めての一人暮らしの方、上京や転勤、転職で土地勘がない方、現在お仕事をされていない方や、水商売の方、生活保護を受給されている方、保証人のいらっしゃらない方、初期費等ご予算が不安な方、その他どんなご事情がある方でも、ベテランスタッフがお客様の条件に合ったお部屋をお探しいたします! 急なお引越で何件もまわる余裕がない方でもご来店いただければインターネットに掲載されている物件はもちろん非公開の他社さんの物件もまとめてご紹介できます! ★対応可能条件★ ペット可、楽器可、バイク可、タワーマンション、アパート、一戸建て、ルームシェア、二人入居可、学生可、生活保護可、無職可、フリーター、保証人無、母子家庭、シングルマザー、保証人不要、女性限定、学生限定、駅近、防犯、転勤、転職、法人寮、学生寮などのこだわり条件も! ★対応可能沿線・駅★ JR山手線・東横線・田園都市線・井の頭線・京王線・小田急線・千代田線・世田谷線・目黒線・多摩川線・大井町線・浅草線・池上線・南武線・中央線・半蔵門線・丸の内線 渋谷駅・原宿駅・代々木駅・新宿駅・目黒駅・恵比寿駅・五反田駅・大崎駅・品川駅・三軒茶屋駅・池尻大橋駅・l駒沢大学駅・桜新町駅・用賀駅・二子玉川駅・代官山駅・中目黒・祐天寺駅・学芸大学駅・都立大学駅・自由ヶ丘駅・下北沢駅・明大前駅・吉祥寺駅・代々木公園駅・代々木八幡駅・参宮橋駅・川崎駅・武蔵小杉駅・溝の口駅・二子新地駅・高津駅など様々な沿線、駅でも! ★対応可エリア★ 都内23区・渋谷区・新宿区・目黒区・杉並区・中野区・世田谷区・品川区・港区・狛江市・調布市・稲城市・町田市・国分寺市・国立市・立川市・八王子市・府中市・川崎市・横浜市以外でもご相談下さい! ☆都内近郊から神奈川、埼玉、千葉のお部屋探しは『U-style』にお任せください!03-5937-2388☆ |
||
| 条件(その他) | 鍵交換代:2万5,300円 すまいサポート24:1,100円(月額) 高齢者相談 | ||
| 取扱会社 |
|
||
| QRコード |
このQRコードを読み取ることで、スマホでも物件情報を確認できます。 |
||
※地図上に表示される物件の位置は付近住所に所在することを表すものであり、実際の物件所在地とは異なる場合がございます。
Villa SUBARUに関するこだわり条件から探す